Adani Downtown Avenue

Adani Downtown Avenue

About Developer
Sector 62, Gurugram
Starting Price 9,60,00,000.00*
Property Type Pre-Leased
Typology Office Spaces,Restaurants,Retail Shops
Possesion Ready To Move
RERA HARERA No. 64 of 2010

About Adani Downtown Avenue

Adani Downtown Avenue is a premium commercial project located in Sector 62, Gurgaon, developed by Adani Realty, a well-reputed developer in the real estate industry, known for their timely delivery commitment, with superior construction quality and modern design. The project is RERA registered with RERA number HARERA No. 64 of 2010, ensuring transparency and reliability for the investors.

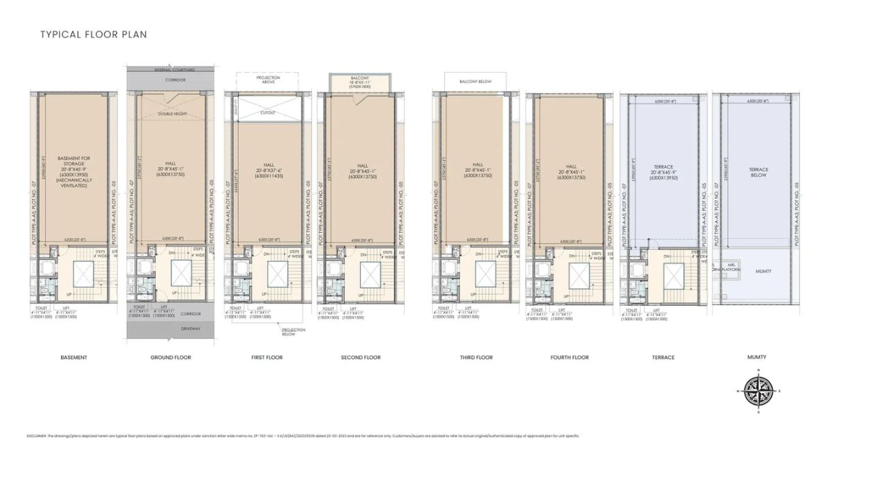
Adani Downtown Avenue is spread across approximately 3.4 acres, offering around 37 premium SCO plots with sizes ranging from approximately 1,080 sq. ft. to 1,800 sq. ft., providing flexible options for investors by providing SCO plots to design retail shops, office spaces, or restaurants. The project is thoughtfully designed with a focus on efficient layouts, proper utilization of space, natural light, and ventilation facilities, which provide proper open space and a modern infrastructure that provides smooth business operations.

Adani Downtown Avenue offers a wide range of modern amenities such as 24x7 security, power backup, high-speed elevators, well-planned drop-off zones, and advanced lighting systems. The project is designed to provide an active commercial environment for entrepreneurs as well as businesses, which overall enhances both business efficiency and customer experience.

Adani Downtown Avenue is strategically located in Sector 62, Gurgaon, near Golf Course Extension Road, providing excellent connectivity to Sohna Road and the Rapid Metro. The project is also in close proximity to metro stations, schools, shopping complexes, and business centers, making it a prime commercial destination option for the investors as well as upcoming infrastructure development projects in the same area, making this location a perfect long-term investment option.

Overall, Adani Downtown Avenue is an ideal investment opportunity for those who are looking to invest in Gurgaon’s booming commercial real estate market, with its prime location, modern infrastructure, strong connectivity, ample open spaces, luxury amenities, and long-term investment value.

Powered by Froala Editor

Adani Downtown Avenue Gurgaon Overview

Project Name
Adani Downtown Avenue
Builder
Adani Realty Group
Location
Sector-62, Gurgaon
Unit Type
SCO Plots
Possession 
Ready to Move
Area
3.4 Acres
RERA No.
HARERA No. 64 of 2010
Project Type
Premium Commercial Project
Starting Price 
9.6 Cr
Payment Plan
Flexible

Powered by Froala Editor

+91 8726187361

Key Features Adani Downtown Avenue

  • High-Speed Elevators
  • Ample Parking Space
  • Well-Planned Infrastructure
  • Wide Internal Roads
  • Drop-off Zones
  • Modern Lighting Systems
Adani Downtown Avenue Sector 62 Key Features

Adani Downtown Avenue Amenities

24x7 Power Backup

24x7 Power Backup

Air Conditioning

Air Conditioning

CCTV

CCTV

Car Parking

Car Parking

24x7 Security

24x7 Security

Rain Water Harvesting

Rain Water Harvesting

Free Wi-Fi

Free Wi-Fi

Adani Downtown Avenue Similar Project

Project NameUnit TypePrice
Adani M2K Oyster Arcade
Commercial Project
Price On Call
Ameya Sapphire 82ACommercial Project
Price On Call
M3M Xpressway 114Commercial Project
Price On Call

Powered by Froala Editor

+91 8726187361

Adani Downtown Avenue Sector 62 Price List

Unit TypeAreaPrice
Plot1080-1800 Sq. Ft.9.60 Cr onwards

Powered by Froala Editor

+91 8726187361

Adani Downtown Avenue Sector 62 Gurgaon Location Advantages

Located on Golf Course Extension Road

Close to Sohna Road

Easy access to Rapid Metro

Surrounded by premium residential projects

Near reputed schools and hospitals

Well connected to major business hubs of Gurgaon

Powered by Froala Editor

Adani Downtown Avenue Sector 62 Gurgaon Location Map

Gallery

Master Plan

Floor Plans

Adani Downtown Avenue FAQs

What types of Space are available at Adani Downtown Avenue?

Adani Downtown Avenue Space has available is Commercial type.

What is the total land area of Adani Downtown Avenue?

The total land area of Adani Downtown Avenue is 3.4 Acers.

What is the starting price of Space in Adani Downtown Avenue?

The starting price of Space in Adani Downtown Avenue is 9.60 Cr*.

What is the RERA registration status of the project?

Yes, Adani Downtown Avenue is RERA Approved Project.

What is the possession status of Adani Downtown Avenue?

The possession status of Adani Downtown Avenue is ready to move.

What is the location of Adani Downtown Avenue?

The location of Adani Downtown Avenue is Sector 62, Gurgaon.

How many units are available in Adani Downtown Avenue?

The total units are available in Adani Downtown Avenue is 37.

Properties by Developer

Get Complete Property Details

Fill in your details to receive Brochure, Price & More Details.

BrokerSaathi Services

Install Our App for all your Real Estate needs.

Brokersaathi app cover image
Book My Demo

Find Your Dream Property

Get personalized property recommendations from our expert team

Expert Consultation
Lower price guaranteed
Best Deals & Offers
Zero brokerage
100% Free Service
Full service support

Get in Touch

Fill the form below and we'll get back to you within 24 hours

Your information is secure and will not be shared