dlf gardencityindependantlfloors3

DLF Gardencity Independent Floors

About Developer
Sector 92, Gurugram
Starting Price 1,96,00,000.00*
Property Type Low Rise Floors
Typology 3 BHK,4 BHK
Possesion Ready To Move
RERA RERA-GRG-PROJ-817- 2021

DLF Gardencity Independent Floors About

The living environment at DLF Garden City Independent Floors in Sector 92 Gurgaon provides luxurious and private spaces for families who want premium residences within desirable living spaces. DLF Garden City Sector 92 stands as a residential community at New Gurgaon's center which seamlessly embodies DLF's trademark of superior quality and trust. 
 
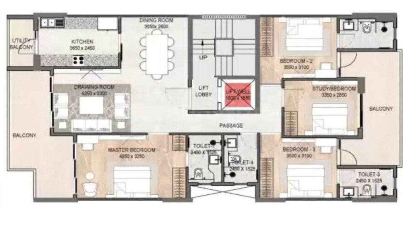
The development has Introduced both 3 BHK Independent Floors in Gurgaon and 4 BHK Independent Floors in Gurgaon to accommodate different family preferences. The area distributes floor sizes from 1782 sq.ft. for 3 BHK units up to 4739.35 sq.ft. for elevated 4 BHK residences which are a scarcity in urban Gurgaon.
  
At 1.96 Cr DLF Garden City Independent Floors presents 3 BHK units to the market while the highest-priced 4 BHK option reaches 12.99 Cr thereby establishing itself as an excellent Luxury Floor option in Gurgaon. The space and design elements of the DLF Garden City Floor Plans create functional masterpieces through their expert layout designs. 
 
The project's official brochure offers both DLF Garden City Independent Floors Floor Plan and DLF Garden City Images and these downloadable can be accessed by visiting the DLF Garden City Independent Floors Contact page or downloading them online.
  
Every aspect of life receives dedicated attention at DLF because the company delivers advanced security systems with landscaped open spaces throughout its properties. Residents of DLF Garden City Independent Floors benefit from everyday power backup as well as modern club facilities, fitness center access, pristine parks, jogging pathways, and playgrounds made just for children. 
 
The amenities system of DLF Garden City seeks to create a balanced lifestyle suitable for people across different age groups. The strategic DLF Garden City Location enables residents to access NH-48 as well as Dwarka Expressway and IMT Manesar and the main Gurgaon commercial centers and IT districts
 
Residents of DLF Garden City Sector 92 Gurgaon can easily reach top educational institutions along with hospitals and shopping centers by driving a brief distance. This complex features desirable features such as its dense construction alongside premium construction standards that make it superior to conventional area residential buildings. 
 
Users can depend on DLF’s reputation for prompt delivery dates which correspond with the DLF Garden City Possession Date while the developer offers adaptable payment structures to match individual financial situations through their DLF Garden City Payment Plan. During the DLF Garden City Booking process buyers can confirm what special schemes and promotional offers currently exist. 
 
DLF Independent Floors Gurgaon delivers top appreciation value to people with residential or investment plans in the fast-growing city corridors. The DLF Garden City Independent Floors Brochure contains details about project specifications along with price information together with available amenities for buyers. 
 
The project satisfies users and investors because DLF provides transparent documentation combined with excellent location benefits and its strong reputation. Review the current price lists at DLF Garden City Independent Floors before beginning your dream purchase with today's DLF Garden City Independent Floors Booking procedure. You will find every luxurious requirement for Gurgaon apartment living in DLF Garden City Floors Sector 92.

Powered by Froala Editor

Highlights DLF Gardencity Independent Floors


Location ( Sector 92 Gurgaon ) - DLF Garden City Independent Floors is strategically situated in Sector 92, Gurgaon, a prime location known for its rapid development and accessibility.



Total Project Area ( 101 Acres )DLF Garden City Independent Floors, which spans 101 acres, offers a spacious living environment. 



Property Type ( Low Rise ) -DLF Garden City Independent Floors , with its low-rise construction, provides a different kind of living experience than other high-rise projects.



Total Units ( 472 ) - The project consists of 472 well-thought-out flats that accommodate different lifestyle preferences. 



Configurations ( 3 & 4 BHK ) - There are a variety of homes in the complex to suit different tastes. There are 472 units available, with 3 & 4  BHK layouts available to tenants.



Floor Size ( 2626- 3480Sqft. ) - The size of the residences, which range from 2626 to 3480 square feet, allows inhabitants to live large and comfortably.



Possession ( Ready To Move) - DLF Garden City Independent Floors promises to provide residences by ready to move, the date set forth in the schedule.

Powered by Froala Editor

+91 8726187361

Amenities DLF Gardencity Independent Floors

Air Conditioning

Air Conditioning

Emergency Exit

Emergency Exit

Free Parking in the area

Free Parking in the area

Free Wi-Fi

Free Wi-Fi

Power Backup

Power Backup

24x7 Water Supply

24x7 Water Supply

aerobics

aerobics

Similar Project DLF Gardencity Independent Floors

Project NameUnit TypePrice
Smart World Orchard2.5 BHK & 3 BHK1.8 Cr
ATS Homekraft 1053 & 4 BHK2 Cr
Trehan Luxury Floors3 BHK1.8 Cr

Powered by Froala Editor

+91 8726187361

Location Advantages DLF Gardencity Independent Floors

Connectivity
Huda City Centre Metro Station – About 16 km away on the Yellow Line.
Dwarka Sector 21 Metro Station – Around 22 km away on the Blue and Airport Express Line.
IMT Manesar Bus Stop – Located approximately 5 km from Sector 92.
Sector 10A Bus Stop – Around 9 km away with local and Haryana Roadways service.
Garhi Harsaru Junction – Just 6 km away, offering regional rail connectivity.



Schools
Starex University – About 10 km away, offering diverse undergraduate and postgraduate courses.
SGT University– Located 9 km from Sector 92, known for medical and technical education.
GD Goenka Public School, Sector 89 – Just 3 km away, offering CBSE curriculum with modern facilities.
RPS International School – Around 2.5 km from the project, known for quality education and activities.
Aakash Institute, Gurgaon – Approximately 11 km away, known for NEET and JEE coaching.

 



Hospitals
Silver Streak Hospital – Located about 4 km away, offering 24/7 emergency and trauma care.
Arc Multi Speciality Hospital– Around 5 km away, known for round-the-clock critical care services.
Medanta The Medicity – Approximately 13 km away, one of India’s leading super-specialty hospitals.
Artemis Hospital – Located around 15 km away, offering advanced multispecialty treatments.
Cloudnine Hospital, Sector 47 – Roughly 12 km away, known for comprehensive mother and child healthcare.

 



Business Centres
Udyog Vihar – Around 18 km away, one of Gurgaon's largest industrial and business zones.
IMT Manesar – Just 5 km away, home to many manufacturing units and office spaces.
Sapphire 83 Mall – Located 3.5 km away, offering retail and office setups.
Cyber City, Gurgaon– About 20 km from Sector 92, a premium corporate and commercial hub.


Entertainment
Sahara Mall – About 13 km away, offering a variety of retail outlets and dining options.
MGF Metropolitan Mall – Located 15 km from Sector 92, featuring top brands and shopping experiences.
PVR Cinemas, Ambience Mall – Around 16 km away, providing a premium movie-watching experience.
Inox, Sahara Mall – Approximately 13 km away, a popular spot for the latest movie releases.
Fun N Food Village – Around 18 km away, a family amusement park with water rides and activities.

Powered by Froala Editor

Powered by Froala Editor

Powered by Froala Editor

Gallery

FAQs DLF Gardencity Independent Floors

What is the location of DLF Gardencity Independent Floors?

The location of DLF Gardencity Independent Floors is Sector 92, Gurgaon, which offers excellent connectivity to key areas of the city and the Delhi NCR region.

What is the starting price of flats in DLF Gardencity Independent Floors?

The starting price for flats in DLF Gardencity Independent Floors is 1.96 Cr .

What reputed schools and hospitals are nearby?

Yes, reputed schools such as Shiv Nadar School and The Heritage School, along with hospitals like Medanta – The Medicity and Fortis Memorial Research Institute, are within convenient distances

What parking facilities are available?

DLF Gardencity Independent Floors provides ample parking spaces, ensuring that residents have sufficient parking for their vehicles.

What security features are available at DLF Gardencity Independent Floors?

DLF Gardencity Independent Floors offers state-of-the-art security features, including 24x7 security personnel, CCTV surveillance, and a gated community to ensure residents

What types of flats are available at DLF Gardencity Independent Floors?

DLF Gardencity Independent Floors offers spacious 3 BHK and 4 BHK flats.

What is the RERA registration status of the project?

RERA register successfully.

What are the location advantages of DLF Gardencity Independent Floors?

Independent Floors is well-connected to major business hubs like Cyber City, entertainment areas, schools, hospitals, metro stations, and is just a short distance from Indira Gandhi International Airport, making it an ideal location for residents.

What amenities are available at DLF Gardencity Independent Floors?

Amenities include 24x7 power backup, water supply, security systems, landscaped gardens, a clubhouse, gymnasium, swimming pool, jogging tracks, children’s play area, and retail outlets for convenience.

What is the possession status of DLF Gardencity Independent Floors?

DLF Gardencity Independent Floors is ready to move.

Get Complete Property Details

Fill in your details to receive Brochure, Price & More Details.

BrokerSaathi Services

Install Our App for all your Real Estate needs.

Brokersaathi app cover image
Book My Demo