DLF New Town Heights II

DLF New Town Heights II

About Developer
Sector 86, Gurugram
Starting Price 1,66,00,000.00*
Property Type Flat
Typology 2 BHK,3 BHK,4 BHK
Possesion Ready To Move
RERA Update Soon

DLF New Town Heights II About

DLF New Town Heights II location is in Sector 86 Gurgaon provides a perfect integration of ample living spaces with contemporary design elements together with superior access points. As an Indian real estate enterprise, DLF created New Town Heights II configuration a premium township that offers 2, 3, & 4 BHK flats for urban families. 

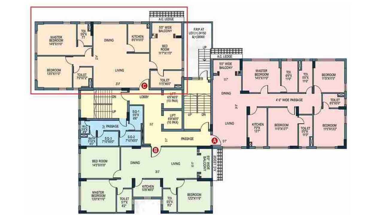
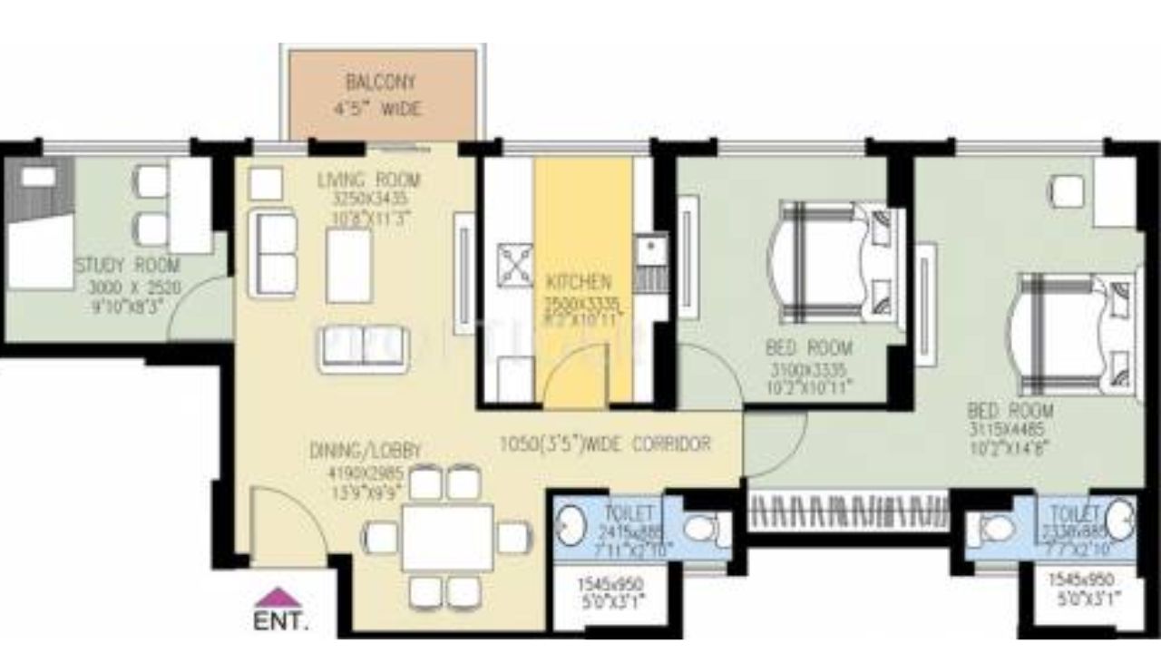
DLF New Town Heights II 2 BHK Flats with prices starting at Rs.1.67 Cr up to Rs.2.15 Cr with their sizes between 1305 to 1615 sq ft. DLF New Town Heights II 3 BHK price Gurgaon in Gurgaon take in home Choice allying Rs.2.03 Cr and Rs.2.87 Cr for 1760 to 2051 sq. ft. residences. dlf new town heights 4 bhk apartments between 2190 to 2200 sq. ft. can choose from three price choice starting at Rs.2.47 Cr with an upper limit at Rs.3.82 Cr.

DLF New Town Heights 86 Gurgaon because they demonstrate both considerate designs and generous interior spaces and excellent cross ventilation. DLF New Town Heights II 4 BHK floor plandetails-oriented planning pudding optimize the floor plans of the project is 4 BHK units and other units to stretch.efficiency and preserve attractive design elements. 

DLF New Town Heights II amenities list includes complete amenities like swimming pools, 24-hour security, sports courts, clubhouses and landscaped gardens. Realizing its dedication to all-round lifestyle comfort the developer presents the complete amenities package at dlf new town heights 2 sector 86.

DLF New Town Heights II Sector 86 Gurgaon apartments exists in Sector 86 among its fast-developing areas which provides direct access to NH-48 along with Dwarka Expressway connectivity and IMT Manesar reach. Reputable schools together with hospitals and shopping centers connect seamlessly with the dlf new town heights gurgaon sector 86 zone. 

The area has earned praise from DLF New Town Heights Sector 86 review writers about its friendly community along with superior maintenance and peaceful residential environment.

DLF New Town Heights Sector 86 floor plan, brochure PDF and complete layout description provide house buyers with a clear picture of each apartment design. The residential real estate option within DLF New Town Heights gurgaon rent Sector 86 exists for people seeking to purchase flats or rent them both as end-users and investors. 

The residential area's rising fame shows through increasing interest in buying and renting properties at DLF New Town Heights Sector 86. DLF new town heights building 1 and 3 sector 86 present prospective homebuyers with modern homes equipped with superior features. 

dlf new town heights sector 86 pin code122004 which signifies its superior position within the residential areas of the city. These qualities combine into a perfect residential destination because residents experience exceptional value from DLF New Town Heights II Sector 86 in Gurgaon.

Powered by Froala Editor

Highlights DLF New Town Heights II


Location ( Sector 86 Gurgaon ) -DLF New Town Heights II is strategically situated in Sector 86, Gurgaon, a prime location known for its rapid development and accessibility.



Total Project Area ( 30 Acres ) - DLF New Town Heights II, which spans 30 acres, offers a spacious living environment. 



Property Type ( High Rise ) - DLF New Town Heights II, with its high-rise construction, provides a different kind of living experience than other low-rise projects.



Total Units ( 1198 ) - The project consists of 1198 well-thought-out flats that accommodate different lifestyle preferences. 



Configurations (  2,3,& 4 BHK ) - There are a variety of homes in the complex to suit different tastes. There are 1198 units available, with 2,3,& 4 BHK layouts available to tenants.



Floor Size ( 1535- 3090Sqft. ) - The size of the residences, which range from 1535 to 3090 square feet, allows inhabitants to live large and comfortably.



Possession (Ready To Move ) - DLF New Town Heights II promises to provide residences by ready to move the date set forth in the schedule.

Powered by Froala Editor

+91 8726187361

Amenities DLF New Town Heights II

24x7 Security

24x7 Security

24x7 Water Supply

24x7 Water Supply

aerobics

aerobics

Air Conditioning

Air Conditioning

Children's Play Area

Children's Play Area

Car Parking

Car Parking

Free Wi-Fi

Free Wi-Fi

Similar Project DLF New Town Heights II

Project NameUnit TypePrice
Smart World Orchard 2.5 BHK & 3 BHK1.8 Cr
ATS Homekraft 1053 & 4 BHK2 Cr
Trehan Luxury Floors3 BHK1.8 Cr
DLF Garden CITY3 BHK1.7  Cr

Powered by Froala Editor

+91 8726187361

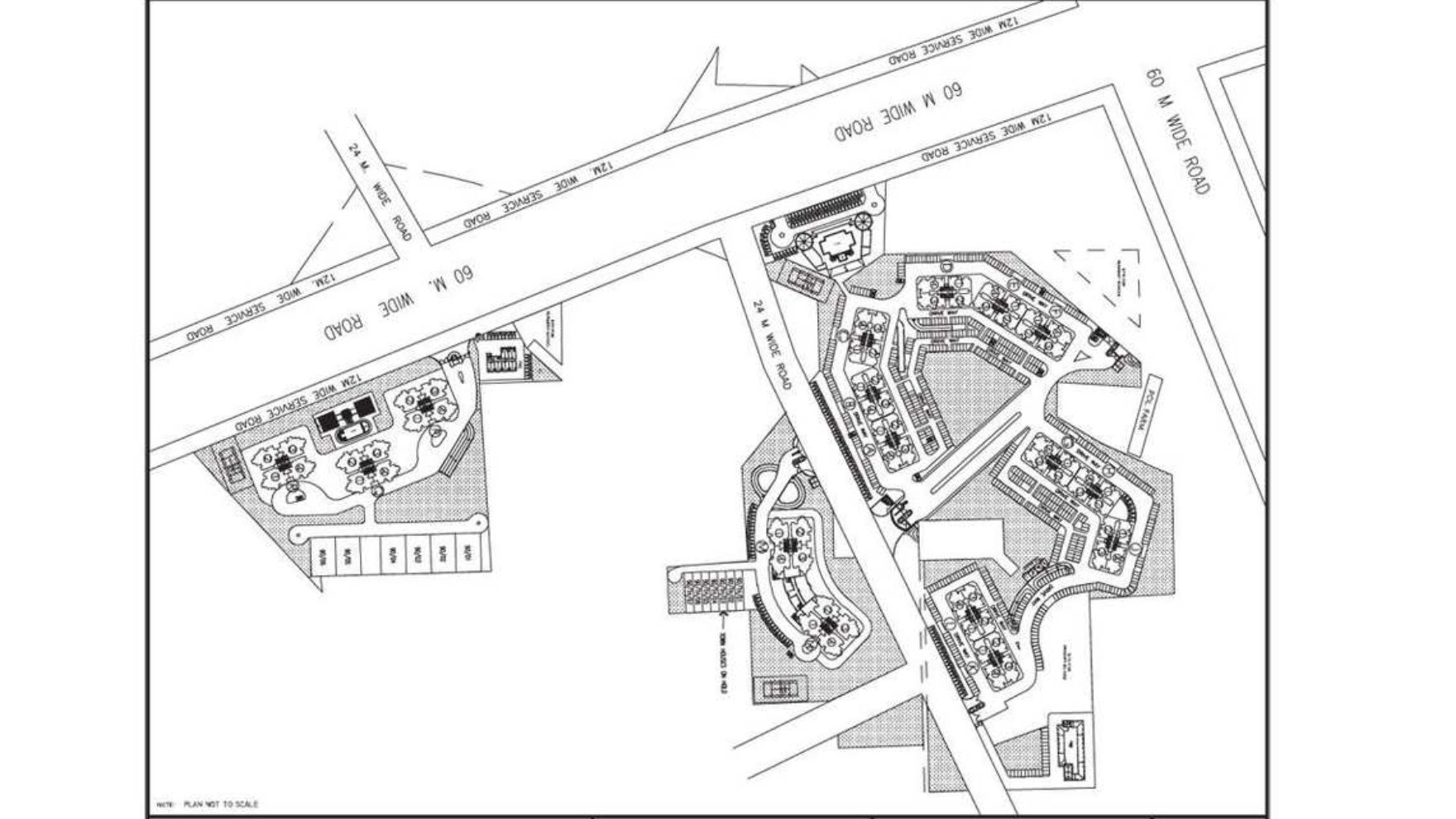
Location Advantages DLF New Town Heights II

Connectivity
Huda City Centre Metro Station: Approximately 15 km away, it connects Gurgaon to Delhi via the Yellow Line.
Sector 55-56 Metro Station: Located about 12 km from the project, it is a key station on the Rapid Metro network.
Sector 86 Bus Stop: Just a few minutes away, it serves as a local transit point for intra-city travel.
IMT Manesar Bus Stop: Located within 5 km, offering convenient connectivity to nearby industrial hubs.
Gurgaon Railway Station: Approximately 13 km away, this station connects Gurgaon to major cities across the country.



Schools
GD Goenka University: A renowned institution for higher studies, located 20 minutes away.
Amity University Gurgaon: Well-known for its diverse programs, about 25 minutes from the project.
Delhi Public School (DPS), Sector 84: A reputed school offering quality education, just 3 km away.
St. Xavier’s High School, Sector 81: Known for academic excellence, situated within a 10-minute drive.
FIITJEE Gurgaon: A leading center for engineering entrance coaching, 12 km away.



Hospitals
Medanta - The Medicity: A world-class hospital providing round-the-clock emergency care, located about 12 km away.
Rockland Hospital, Manesar: Well-equipped for emergency services, just 7 km from the project.
Artemis Hospital: Renowned for super-specialty services, located approximately 15 km from the project.
Park Hospital, Sector 47: Offers multispecialty treatment with advanced facilities, around 10 km away.
Cloudnine Hospital: A leading hospital for pediatric and neonatal care, located 10 km away.



Business Centres
Cyber City, Gurgaon: A global business hub hosting multinational corporations, 20 km away.
Udyog Vihar: An established commercial zone, located about 18 km from the project.
DLF Corporate Greens: A premium office complex located 5 km from Sector 86.
Manesar Industrial Area: Home to several prominent manufacturing and service industries, just 6 km away.
Unitech Cyber Park: A modern IT park situated approximately 14 km from the project.



Entertainment
Ambience Mall, Gurgaon: A premier shopping and entertainment destination, located about 18 km away.
Sapphire 83 Mall: A local retail and dining hub, just 3 km from the project.
PVR Cinemas, Ambience Mall: Offers an immersive movie experience, approximately 20 minutes away.
Carnival Cinemas, Sector 83: A convenient spot for watching movies, located within 5 minutes of the project.
Appu Ghar Water Park: A perfect spot for family outings, located 15 km from the project.


Powered by Froala Editor

Gallery

Floor Plans

FAQs DLF New Town Heights II

What is the location of DLF New Town Heights II?

The location of DLF New Town Heights II is Sector 86, Gurgaon, Haryana.

What is the starting price of flats in DLF New Town Heights II?

The starting price for flats in DLF New Town Heights II is 1.64 CR*.

What reputed schools and hospitals are nearby?

Yes, reputed schools like Delhi Public School (Sector 84) and hospitals like Medanta - The Medicity and Artemis Hospital are located nearby, ensuring quality education and healthcare access.

What parking facilities are available?

DLF New Town Heights II provides ample car parking spaces, catering to both residents and visitors.

What parking facilities are available?

DLF New Town Heights II provides ample car parking spaces, catering to both residents and visitors.

What security features are available at DLF New Town Heights II?

The project offers robust security features, including 24x7 manned security, CCTV surveillance, gated access, and intercom facilities to ensure the safety of all residents.

What types of flats are available at DLF New Town Heights II?

DLF New Town Heights II offers spacious 2 BHK, 3 BHK, and 4 BHK apartments, designed to cater to families of varying sizes and preferences.

What is the RERA registration status of the project?

DLF New Town Heights II is RERA registered, ensuring compliance with all legal and quality standards.

What are the location advantages of DLF New Town Heights II?

The project enjoys a strategic location with excellent connectivity to NH-48, Dwarka Expressway, major IT hubs, educational institutions, hospitals, and shopping centers, offering unmatched convenience.

What amenities are available at DLF New Town Heights II?

Amenities include a state-of-the-art clubhouse, swimming pool, gymnasium, landscaped gardens, jogging tracks, children’s play areas, yoga/meditation zones, and 24x7 power backup and water supply.

What is the possession status of DLF New Town Heights II?

The possession status of DLF New Town Heights II is Ready-to-Move for many units, while others are in the final stages of handover.

Get Complete Property Details

Fill in your details to receive Brochure, Price & More Details.

BrokerSaathi Services

Install Our App for all your Real Estate needs.

Brokersaathi app cover image
Book My Demo