Emaar The 88

Emaar The 88

About Developer
Sector 112, Gurugram
Starting Price 1,85,00,000.00*
Property Type Flat
Typology 2 BHK,3 BHK
Possesion 4 Year
RERA 18 OF 2024

About Emaar The 88

Emaar The 88 is a premium residential project in Sector 112, Dwarka Expressway, Gurgaon by Emaar India, designed to offer low-density luxury living in one of the city’s most promising locations. Developed for modern urban families, Emaar The 88 Gurgaon features contemporary architecture, spacious apartments, and a peaceful environment, making it an ideal choice for both end-users and investors.

Emaar The 88 Sector 112 Gurgaon enjoys a prime location on the rapidly developing Dwarka Expressway, ensuring excellent connectivity to Delhi, Dwarka, and key areas of Gurgaon. The project offers easy access to NH-48, IGI Airport, Cyber City, and Udyog Vihar, making daily commuting smooth and convenient. Emaar The 88 Dwarka Expressway Gurgaon is also close to reputed schools, hospitals, shopping malls, and major business hubs, providing residents with a well-connected and comfortable lifestyle.

Spread across 6 acres, Emaar The 88 is a thoughtfully planned residential community featuring two residential towers. The project has been designed as a low-density development with only 88 exclusive residential units, ensuring enhanced privacy, open spaces, and a calm living environment. The towers are planned with limited floors to promote better ventilation, natural light, and a sense of openness throughout the community.

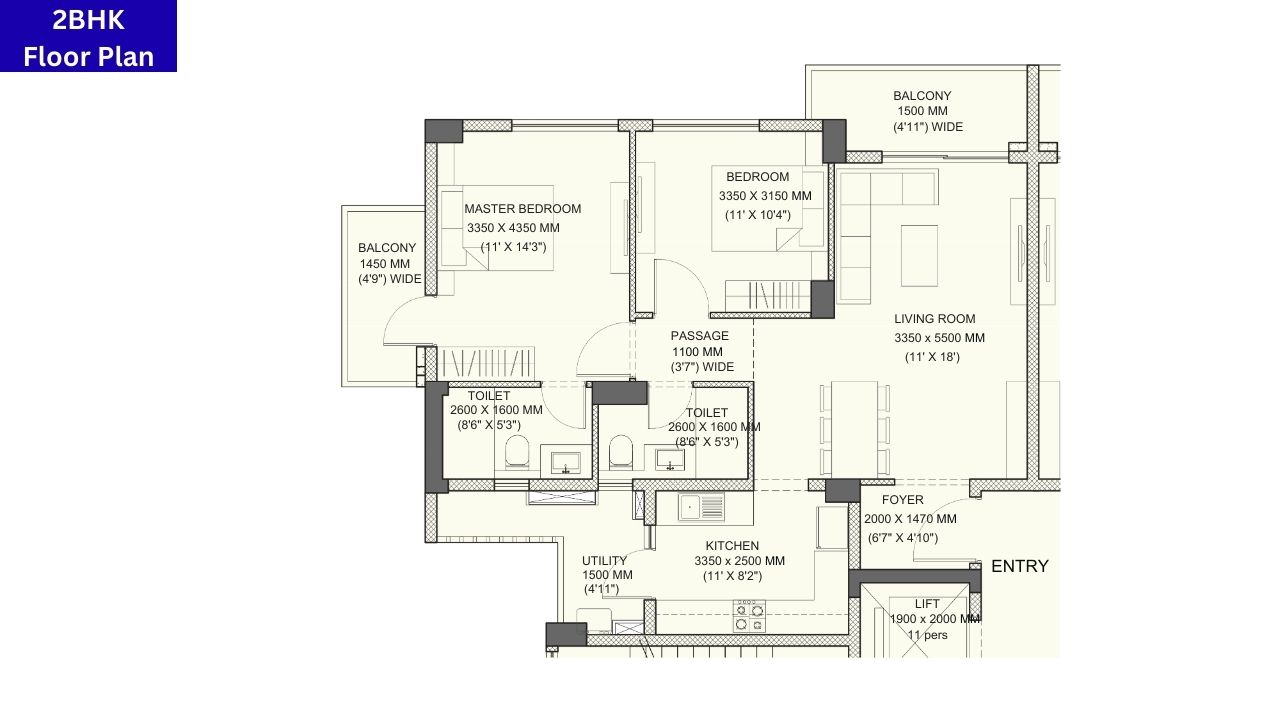
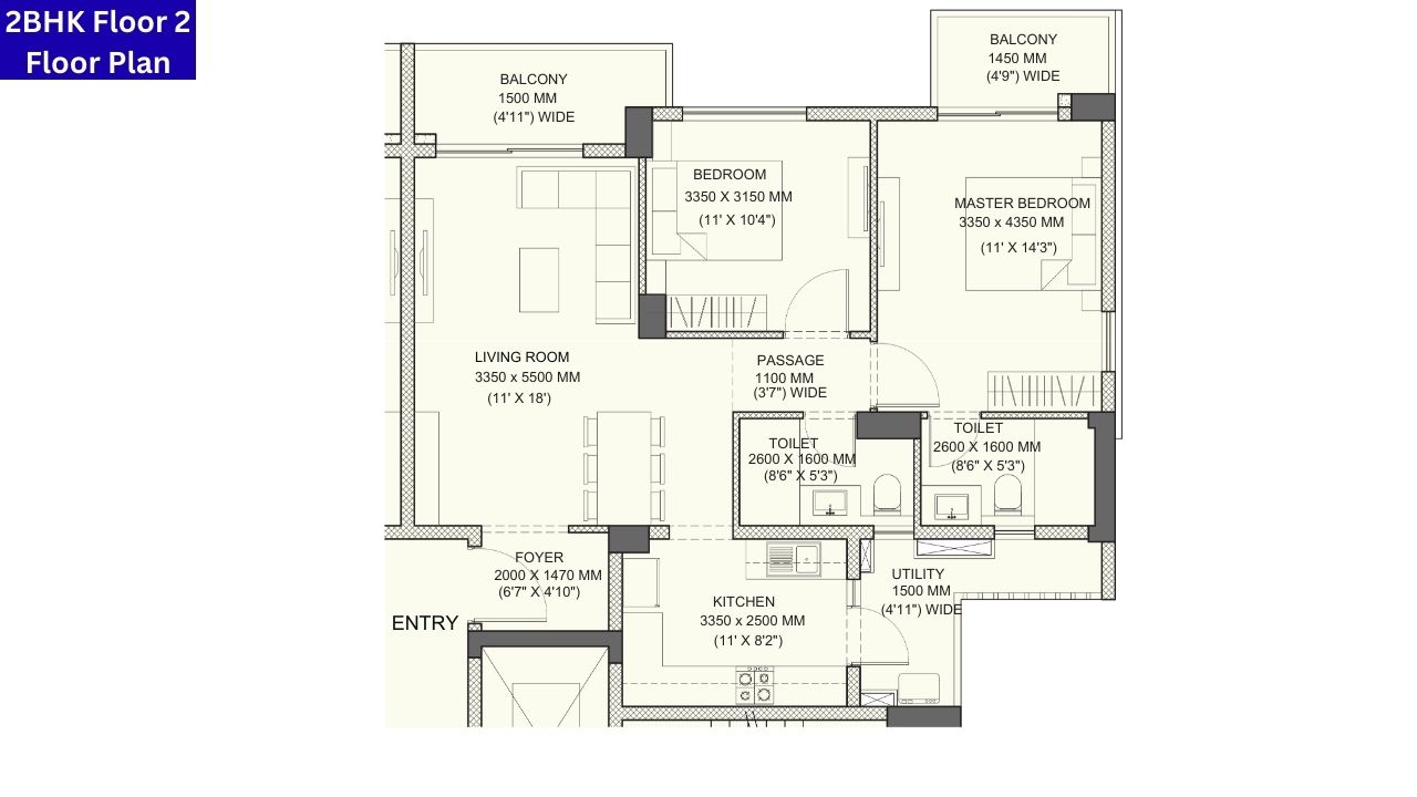
Emaar The 88 Sector 112 offers spacious 2 BHK and 3 BHK apartments, with sizes ranging from approximately 1,350 sq. ft. to 1,809 sq. ft. Each home is designed with efficient layouts, large balconies, and premium-quality specifications that enhance everyday comfort and functionality. The residences reflect Emaar’s commitment to quality construction and refined living standards.

The project is RERA registered, providing transparency, regulatory compliance, and buyer confidence. Residents of Emaar The 88 Dwarka Expressway can enjoy a range of modern lifestyle amenities including a clubhouse, swimming pool, fully equipped gymnasium, landscaped green areas, and dedicated play zones for children. The gated community also offers 24/7 security, controlled access, and ample parking facilities.

Overall, Emaar The 88 Dwarka Expressway Gurgaon stands out as an exclusive residential address that blends strategic location, trusted developer credibility, and thoughtfully designed homes. Whether for self-use or long-term investment, Emaar The 88 offers a refined, secure, and future-ready living experience in Gurgaon.

Powered by Froala Editor

Emaar The 88 Sector 112 Overview

Project Name
Emaar The 88
Builder
Emaar Group
Location
Sector-112,Gurgaon
Unit Type
2BHK & 3BHK
Possession 
2030
Area
1.84 Acres
RERA No.
18 OF 2024
Project Type
Luxury Residential Project
Starting Price 
1.85 Cr*
Payment Plan
Flexible 

Powered by Froala Editor

+91 8726187361

Key Features Emaar The 88

  • Exclusive clubhouse amenities
  • Landscaped green surroundings
  • Premium specifications inside
  • Modern architectural design
  • Only 88 residences
  • Spacious private balconies
  • Low-density luxury living
Emaar The 88 Key Features

The 88 Emaar Gurgaon Amenities

Club House

Club House

Power Backup

Power Backup

24x7 Security

24x7 Security

24x7 Water Supply

24x7 Water Supply

Cafeteria

Cafeteria

Car Parking

Car Parking

CCTV

CCTV

Children's Play Area

Children's Play Area

Emaar The 88 Sector 112 Gurgaon Similar Project

Project Name
Unit Type
Price
3BHK & 4BHK
2.56 Cr
2BHK, 3BHK & 5BHK
2.26 Cr
3BHK, 4BHK & 5BHK
2.11 Cr
3BHK
2.50 Cr

Powered by Froala Editor

+91 8726187361

Emaar The 88 Dwarka Expressway Price

Unit Type
Unit Size
Price
2 BHK Apartment
1325 - 1450 SQ. FT.
Price on Call
2 BHK + Servant
1573 SQ. FT.
Price on Call
3 BHK Apartment
1800 - 2154 SQ. FT.
Price on Call

Powered by Froala Editor

+91 8726187361

The 88 Emaar Payment Plan

Milestone / Particulars
Payment Percentage
Booking Amount
Rs.5 Lakhs
On Booking & 120 Days
10% each (first 10% less booking)
By 15 April 2024 / Milestones
10% of TSV
Construction Milestones (Slabs)
25% total (5-10% at various stages)
Finishing & OC Application
25% total (15% tiling, 10% OC)
On Offer of Possession (on grant of OC)
15% of TSV

Powered by Froala Editor

+91 8726187361

Emaar The 88 Gurgaon Location Advantages

Emaar The 88 is located in Sector 112, Gurugram

The project is approximately 10 minutes

NH-48 is reachable within 12 minutes

IGI Airport is around 15–20 minutes

Cyber City can be accessed in 25–30 minutes

Udyog Vihar is about 20–25 minutes

Huda City Centre Metro Station 30 minutes

MG Road 25 minutes

IFFCO Chowk is around 28 minutes

Powered by Froala Editor

Emaar The 88 Location Map

Gallery

Master Plan

Floor Plans

Emaar The 88 FAQs

What is Emaar The 88?

Emaar The 88 is a low-density luxury residential development offering premium apartments with modern amenities and excellent connectivity.

What is the location of Emaar The 88?

Emaar The 88 location is in Sector 112, Dwarka Expressway, Gurgaon.

What is the price of Emaar The 88?

Emaar The 88 price starts approximately from Rs.1.9 Cr* onwards, depending on configuration and availability.

What sizes are available at Emaar The 88?

Emaar The 88 Floor plan offers spacious 2 BHK and 3 BHK apartments with large balconies.

What is the possession status of Emaar The 88?

Emaar The 88 Dwarka Expressway is a ready-to-move residential project.

What amenities are offered by Emaar The 88 Gurgaon?

Emaar The 88 property offers amenities such as a clubhouse, swimming pool, gym, landscaped greens, kids’ play area, and 24×7 security.

Who is the developer of Emaar The 88?

Emaar The 88 Sector 112 is developed by Emaar India, a reputed and trusted real estate developer.

Is Emaar The 88 a good investment?

Emaar The 88 is considered a good investment due to its prime Dwarka Expressway location, low-density living, and strong brand value.

Properties by Developer

Get Complete Property Details

Fill in your details to receive Brochure, Price & More Details.

BrokerSaathi Services

Install Our App for all your Real Estate needs.

Brokersaathi app cover image
Book My Demo

Find Your Dream Property

Get personalized property recommendations from our expert team

Expert Consultation
Lower price guaranteed
Best Deals & Offers
Zero brokerage
100% Free Service
Full service support

Get in Touch

Fill the form below and we'll get back to you within 24 hours

Your information is secure and will not be shared