Godrej Zenith

location Sector 89 , Gurugram

Status: Fresh

Starts from 1,50,00,000.00* Map :Sector 89 , Gurugram

Flat

2 BHK

Possesion:3 Year

RERA: RC/REP/HARERA/GGN/799/531/2024/26.

About Godrej Zenith

Godrej Zenith in Sector 89 is a prominent example of the opulent residential developments that are proliferating in the bustling Indian city of Gurgaon. Under the direction of the esteemed Godrej Properties Limited, this vast project promises an unmatched living experience for people looking for coziness, exclusivity, and a hint of luxury. Godrej Zenith, which is sprawled majestically across 14 acres of prime land, features nine spectacular towers that collectively house 1314 exquisite apartments. Godrej Zenith offers well-considered 2, 3, 3.5, and 4 BHK options, accommodating a wide spectrum of occupants from young professionals to well-established families.

Sector 89's advantageous location gives the project even more appeal. Thought of as a developing neighborhood, it provides good access to important business centers like Cyber City and Sohna Road. This guarantees that residents may easily access places of employment, leisure areas, and numerous other necessary amenities. However, Godrej Zenith aims to create a self-contained environment within its bounds, not just a convenient location. As soon as you enter the expansive property, you are faced with beautifully manicured grounds that are brimming with lush vegetation. For those looking for a peaceful retreat, the fresh air and vivid foliage provide a sense of peacefulness amidst the bustle of the city.

Every unit in the towers is finely designed to offer the pinnacle of contemporary living. Year-round comfort is guaranteed by VRV air conditioning, and modular kitchens—which combine style and functionality—become the focal point of any house. The attention to detail goes beyond single units. Residents' safety and well-being are guaranteed by a multi-tiered security system, and plenty of parking places remove the everyday battle to find a spot.

Godrej Zenith is aware that living a truly opulent lifestyle involves living outside of one's dwelling. The project features a cutting-edge clubhouse that is a refuge for leisure and entertainment. The clubhouse offers the ideal environment for entertaining visitors or relaxing after a hard day. It has several features, such as a glittering pool, a fully furnished gym, and areas set aside for indoor games and activities. The complex offers specialized sports facilities for individuals who are fitness enthusiasts, motivating residents to lead an active lifestyle.

Godrej Zenith is committed to promoting a feeling of community in addition to designing opulent living areas. The vastly beautiful gardens turn into a natural meeting place where locals may relax, mingle, and form enduring relationships. Children's play areas guarantee that the youngest members of the family have a special place to explore, learn, and make enduring memories. The project aims to support each member of the family, encouraging a feeling of unity and belonging.

Godrej Zenith's attraction is further reinforced by the heritage of Godrej Properties Limited. Godrej Properties is well-known in the Indian real estate industry for its dedication to high-quality construction, creative design concepts, and moral corporate conduct. Selecting an apartment from Godrej Zenith means investing in a brand that is known for dependability, trustworthiness, and timeless value as well as a place to live.

To sum up, Godrej Zenith makes a strong case for people looking for a way of life that skillfully combines comfort, luxury, and ease. Godrej Zenith redefines what it means to live modern in Gurgaon with its world-class amenities, carefully planned apartments, prime location, and emphasis on creating a lively community. Godrej Zenith is a great place to start if you're a young professional looking for a stylish home or a family wanting a place that can accommodate everyone's demands.

Powered by Froala Editor

Powered by Froala Editor

Show More Show Less

Godrej Zenith Highlights


Location ( Sector 89 Gurgaon) Godrej Zenith is strategically situated in Sector 89, Gurgaon, a prime location known for its rapid development and accessibility.



Total Project Area ( 14 Acres ) - Godrej Zenith, which spans 14 acres, offers a spacious living environment. 



Property Type ( High Rise ) - Godrej Zenith, with its high-rise construction, provides a different kind of living experience than other low-rise projects.



Total Units (180 ) - The project consists of 180 well-thought-out flats that accommodate different lifestyle preferences. 



Configurations (2, 3 & 4 BHK ) - There are a variety of homes in the complex to suit different tastes. There are 180 units available, with 2 3,4 BHK  layouts available to tenants.

Possession ( March 1, 2031 ) - Godrej Zenith promises to provide residences by 1 March 2031, the date set forth in the schedule.




Powered by Froala Editor

Powered by Froala Editor

Godrej Zenith Amenities

24x7 Power Backup

24x7 Power Backup

24x7 Security

24x7 Security

24x7 Water Supply

24x7 Water Supply

acupressure

acupressure

aerobics

aerobics

Air Conditioning

Air Conditioning

Air Hockey

Air Hockey

Amphitheatre

Amphitheatre

ATM

ATM

Badminton Court

Badminton Court

Basketball Court

Basketball Court

Billiards

Billiards

Cafeteria

Cafeteria

Car Parking

Car Parking

Card

Card

CCTV

CCTV

Chess

Chess

Children's Play Area

Children's Play Area

Free Wi-Fi

Free Wi-Fi

Show More Show Less

Godrej Zenith Similar Properties

Powered by Froala Editor

Powered by Froala Editor

Godrej Zenith Pricing

Unit TypeAreaPrice
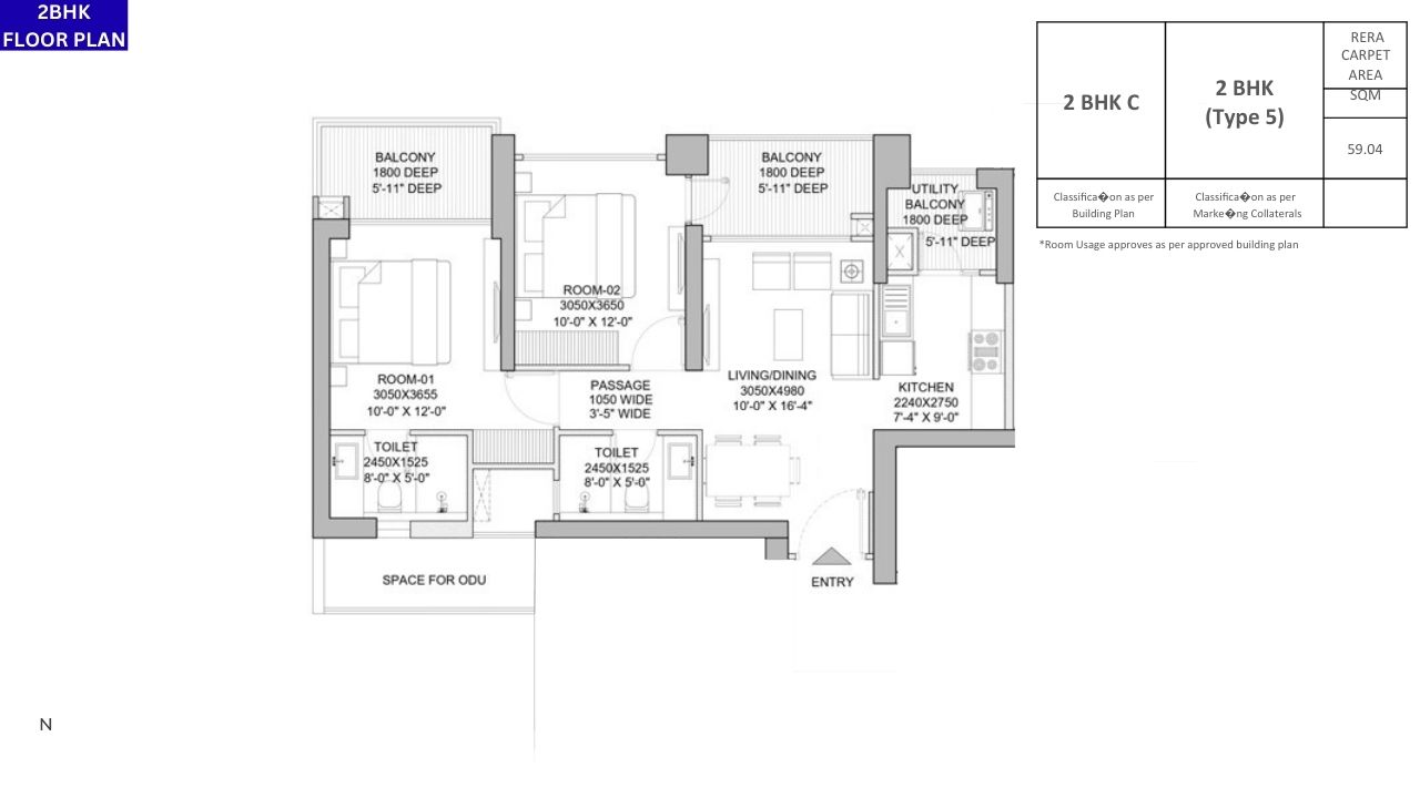
2 BHK1085-1266 Sq. Ft.1.52Cr*
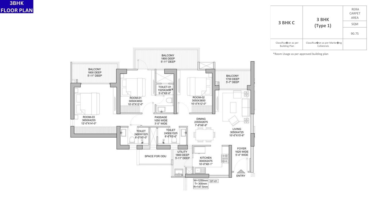
3 BHK1676-2211 Sq. Ft.2.35 Cr*
4 BHK2433-3221 Sq. Ft.4.51 Cr*

Powered by Froala Editor

Powered by Froala Editor

Godrej Zenith Location Advantage

Connectivity

Road Connectivity: Godrej Zenith enjoys excellent road connectivity, with proximity to major roadways such as the Dwarka Expressway, Pataudi Road, and NH-8. This ensures seamless travel to key destinations within Gurgaon and beyond.

Metro Connectivity: The upcoming metro expansion plans in Gurgaon include stations near Sector 89, enhancing public transportation options for residents of Godrej Zenith. Easy access to metro stations will facilitate convenient commuting to various parts of the city.

Airport Connectivity: Indira Gandhi International Airport, located approximately 30 kilometers away from Sector 89, ensures hassle-free travel for residents who frequently travel domestically or internationally.

Railway Connectivity: Gurgaon Railway Station and the proposed Gurugram Railway Station are within a reasonable distance from Godrej Zenith. T railway stations provide connectivity to major cities across India, adding to the convenience of residents.

Social Infrastructure Connectivity: The vicinity of Godrej Zenith is dotted with reputed schools, hospitals, shopping centers, and recreational facilities. This ensures that residents have easy access to essential services and entertainment options without traveling long distances.




Schools

Proximity to Reputed Schools: Residents of Godrej Zenith have access to several reputed schools located within a short distance. These schools offer quality education and cater to the diverse needs of students from preschool to higher secondary levels.

Diverse Curriculum Options: The schools near Godrej Zenith offer a diverse range of curriculum options, including CBSE, ICSE, and international boards like IB and Cambridge.sures that parents have choices to select a school that aligns with their educational preferences and goals for their children.

Extracurricular Activities: Many of the schools in the vicinity of Godrej Zenith emphasize holistic development by providing a wide range of extracurricular activities such as sports, music, dance, arts, and drama. These activities complement academic learning and help in the overall growth and development of students.



Hospitals

Quality Healthcare Facilities: Residents of Godrej Zenith have access to quality healthcare facilities with several hospitals located within a short distance. These hospitals are equipped with modern medical infrastructure and skilled healthcare professionals to cater to a wide range of medical needs.

Multispecialty Services: The hospitals near Godrej Zenith offer multispecialty services, including cardiology, orthopedics, gynecology, pediatrics, oncology, neurology, and more. This ensures comprehensive medical care for residents, regardless of their healthcare requirements.

 Emergency Care: Many hospitals in the area provide round-the-clock emergency care services, including accident and trauma care, emergency surgeries, and critical care units. This ensures prompt medical attention during emergencies, enhancing the safety and well-being of residents.

Diagnostic Facilities: The hospitals near Godrej Zenith are equipped with advanced diagnostic facilities, including MRI, CT scan, X-ray, ultrasound, and laboratory services. This enables accurate diagnosis and timely treatment of medical conditions, contributing to better health outcomes for patients.

 Telemedicine and Teleconsultation: Some hospitals in the vicinity offer telemedicine and teleconsultation services, allowing residents of Godrej Zenith to consult with healthcare professionals remotely. This convenient option facilitates access to medical advice and follow-up consultations from the comfort of home.




Business Centres

Big Shark Business Centre

A.B Enterprises

Vatika Business Centre

Venture Hub



Entertainment

Community Clubhouse: Godrej Zenith features a well-equipped community clubhouse where residents can socialize, relax, and engage in various recreational activities. The clubhouse may offer facilities such as indoor games, a library, and multipurpose halls for events and gatherings.

Swimming Pools: Enjoy leisurely swimming or splash around with family and friends in the swimming pools available within the premises of Godrej Zenith. Whether it's a refreshing dip on a hot day or a fun swim session, the pools provide a perfect spot for relaxation and recreation.

Outdoor Sports Facilities: Residents can stay active and enjoy outdoor sports activities with facilities like cricket nets and an outdoor gym available at Godrej Zenith. Engage in friendly matches, practice your batting skills, or work amidst the lush green surroundings for a rejuvenating experience.

Yoga Garden and Meditation Zones: Find serenity and inner peace in the yoga garden and meditation zones within Godrej Zenith. These tranquil spaces amidst nature provide the perfect ambiance for practicing yoga, meditation, or simply unwinding and connecting with oneself.

Butterfly Garden: Delight in the beauty of nature at the butterfly garden within Godrej Zenith. This enchanting space is designed to attract butterflies and create a peaceful retreat where residents can appreciate the wonders of the natural world.



Powered by Froala Editor

Powered by Froala Editor

Show More Show Less

Godrej Zenith Floor Plans

Godrej Zenith Frequently Asked Questions

What is the construction quality and track record of Godrej Properties?
Is there any provision for security within the Godrej Zenith complex?
What are the nearby social infrastructure facilities available in the vicinity of Godrej Zenith?
Are there any additional charges or maintenance fees for residents of Godrej Zenith?
Is Godrej Zenith registered under RERA (Real Estate Regulatory Authority)?
What are the payment options available for purchasing a unit in Godrej Zenith?
What is the pricing range for units in Godrej Zenith?

Why you should consider Brokersaathi?

  • Best deal guaranteed.
  • After sales support
  • No false commitments

Loan Partners

Interest Rates

sbi bank logo

8.5%

pnb bank logo

8.7%

hdfc bank logo

8.6%

Know More

Get in touch with Brokersaathi

Whatsapp Us Call Now

BrokerSaathi Services

Install Our App for all your Real Estate needs.

Brokersaathi app cover image
Book My Demo