m3mnatura3

M3M Natura

About Developer
Sector 68, Gurugram
Starting Price 1,55,00,000.00*
Property Type Flat
Typology 2 BHK,3 BHK
Possesion Ready To Move
RERA Update Soon

M3M Natura About

M3M Natura location is in Sector 68 Gurgaon provides urban homebuyers with modern and luxury 2 BHK apartments through its carefully designed residential project. A modern architectural design surrounded by nature provides M3M Natura 68 residents with both tranquility and excellent connectivity to central Gurgaon. 

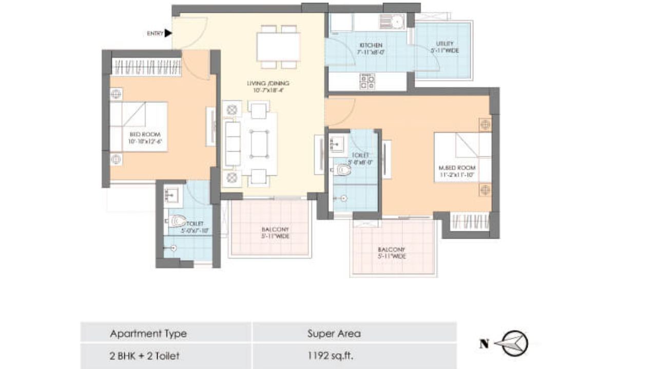
M3M Natura RERA is approval it has successfully gained recognition as a ready-to-move property with functional spaces due to which it attracts end-users and investors. M3M Natura configuration 2 BHK apartments in Gurgaon present different sizes of carpet area that span from 870 sq. ft. to 1120 sq. ft. to provide homeowners ample ventilated living spaces. 

M3M Natura price of Sector 68 Gurugram, find their place in a price range starting from Rs.1.55 Cr and going up to Rs.2 Cr. Each home features an optimized design with functional m3m natura layout which prioritize useful bedroom and living spaces. M3M natura floor plan arrangement strikes a functional and practical equilibrium that welcomes families and working professionals seeking an up-to-date dwelling environment. 

M3M Natura offers ideal rental solutions to prospective buyers because it is well-positioned with high maintenance standards in its surroundings. M3M natura rent property in Sector 68 creates M3M Natura as a desirable choice. M3M Natura resale market demonstrates promising prospects because investors and owners find the Gurgaon M3M Natura resale price appealing due to both its ready-to-move status and its premium construction quality.

Position in M3M Natura stands as a fundamental advantage for this development project. The project lies in a thoroughly established sector because it gives residents perfect links to NH-8 as well as Sohna Road and Golf Course Extension Road. Every unit at M3M Natura enjoys quiet solitude while receiving ample sunshine and clean outdoor air through its well-planned design. 

M3M natura amenities provide a perfect convenience because it is surrounded by schools together with hospitals and shopping centers as well as professional offices. M3M Natura brochure presents interested buyers with complete details about project amenities together with its design philosophy and technical specifications.

No waiting period exists for M3M Natura possession date which enables families to take immediate residence in their new homes. Users who wish to learn about resident experiences report that M3M Natura shows superior construction standards along with impressive site selection and respectable living features.

t M3M Natura 3 BHK flats in Gurgaon have been detected while the project mainly targets 2 BHK unit sales but resale purchases of these scarce apartments are possible. M3M Natura resale price in Gurgaon a residence that combines both contemporary features with environmental living. Rs. 55 Lacs to Rs. 98 Lacs is the residential price range of M3M Natura in Sector 68.

Powered by Froala Editor

Highlights M3M Natura


Location ( Sector 68 Gurgaon ) - M3M Natura is strategically situated in Sector 68, Gurgaon, a prime location known for its rapid development and accessibility.



Total Project Area ( 14 Acres )M3M Natura, which spans 14 acres, offers a spacious living environment. 



Property Type ( High Rise ) - M3M Natura, with its high-rise construction, provides a different kind of living experience than other low-rise projects.



Total Units ( 240) - The project consists of 240 well-thought-out flats that accommodate different lifestyle preferences. 



Configurations ( 2 BHK ) - There are a variety of homes in the complex to suit different tastes. There are 240 units available, with 2 BHK layouts available to tenants.



Floor Size ( 870 - 1120 Sq.Ft. ) - The size of the residences, which range from 870 - 1120 Sq.Ft., allows inhabitants to live large and comfortably.



Possession ( Ready To Move ) - M3M Natura promises to provide residences by ready to move, the date set forth in the schedule.

Powered by Froala Editor

Powered by Froala Editor

+91 8726187361

Amenities M3M Natura

24x7 Security

24x7 Security

24x7 Water Supply

24x7 Water Supply

aerobics

aerobics

Air Conditioning

Air Conditioning

Car Parking

Car Parking

CCTV

CCTV

Children's Play Area

Children's Play Area

Free Wi-Fi

Free Wi-Fi

Garden

Garden

swimming

swimming

Similar Project M3M Natura

Project NameUnit TypePrice
Smart World Orchard 
2.5 BHK & 3 BHK1.8 Cr
ATS Homekraft 1053 & 4 BHK2 Cr
Trehan 713 BHK1.8 Cr
DLF Garden CITY3 BHK1.7  Cr

Powered by Froala Editor

Powered by Froala Editor

+91 8726187361

Location Advantages M3M Natura

Connectivity
Huda City Centre Metro Station: Located approximately 10 km away, providing easy access to the Delhi Metro network.
Sector 55-56 Metro Station: Around 12 km away, offering rapid connectivity within Gurugram.
Badshahpur Bus Stop: Just 3 km from M3M Natura, serving local and intercity routes.
Sector 68 Bus Stand: Situated within walking distance, catering to daily commuters.
Gurgaon Railway Station: Approximately 15 km away, connecting to major cities.




Schools
KIIT College of Engineering: Located 6 km away, renowned for engineering and technical education.
Amity University Gurugram: A prestigious university offering diverse courses, just 10 km away.
GD Goenka Public School: 8 km from M3M Natura, providing a holistic K-12 education.
Heritage Xperiential Learning School: A leading IB and CBSE school, located 9 km away.
Aakash Institute: Specialized in competitive exam coaching, within 8 km from the site.




Hospitals
Medanta - The Medicity: A top-tier hospital with round-the-clock emergency care, 12 km away.
Artemis Hospital: Known for advanced emergency response systems, located 11 km away.
Fortis Memorial Research Institute: 15 km away, offering comprehensive medical care.
Paras Hospitals: Renowned for super-specialty treatments, situated 13 km from the project.
Cloudnine Hospital: Specializing in pediatric and neonatal care, located 10 km away.



Business Centres
Cyber City: A global IT and business hub, 17 km from M3M Natura.
Udyog Vihar: Hosting numerous multinational companies, located 16 km away.
Vatika Business Park: Just 5 km away, housing corporate offices and retail spaces.
Spaze Edge: A modern commercial complex, located 6 km from the project.
DLF Cyber Park: A premium IT hub, situated 14 km away.




Entertainment
Raheja Mall: Located 7 km away, featuring diverse retail and dining options.
Omaxe Celebration Mall: A popular shopping destination, just 8 km from M3M Natura.
PVR Cinemas at Sohna Road: Offering an immersive movie experience, 6 km away.
INOX at Omaxe Mall: A modern multiplex, located 8 km away.
Kingdom of Dreams: India\u2019s first live entertainment theater, 15 km away.

Powered by Froala Editor

Gallery

Floor Plans

FAQs M3M Natura

What is the location of M3M Natura?

The location of M3M Natura is Sector 68, Gurugram.

What is the starting price of flats in M3M Natura?

The starting price for flats in M3M Natura is approximately 1.55 Cr*. for 2 BHK units.

What reputed schools and hospitals are nearby?

Yes, reputed schools like GD Goenka Public School and hospitals like Medanta - The Medicity are within convenient distances.

What parking facilities are available?

Yes, M3M Natura provides ample car parking spaces for residents.

What security features are available at M3M Natura?

M3M Natura hosts a range of facilities such as 24x7 security, gated access, and CCTV surveillance to ensure all the residents feel safe and secure.

What types of flats are available at M3M Natura?

M3M Natura offers luxurious 2 BHK Units.

What is the RERA registration status of the project?

M3M Natura is RERA-approved, ensuring transparency and trustworthiness for potential buyers.

What are the location advantages of M3M Natura?

M3M Natura is strategically located with easy access to key business hubs, schools, hospitals, entertainment centers, metro, local transport facilities, and Indira Gandhi International Airport, making it a well-connected and convenient residential choice.

What amenities are available at M3M Natura?

Amenities include 24x7 power backup, water supply, CCTV surveillance, a childrens play area, a yoga/meditation zone, a grocery shop, and ample car parking facilities.

What is the possession status of M3M Natura?

The possession status of M3M Natura is ready to move.

Get Complete Property Details

Fill in your details to receive Brochure, Price & More Details.

BrokerSaathi Services

Install Our App for all your Real Estate needs.

Brokersaathi app cover image
Book My Demo